坐标:佛山市南海区狮山镇 | 时间:2025年4月

以陶为线索:历史街区里的建筑微更新


在佛山官窑文化艺术中心(官窑三宝)项目中,建筑师尝试用整体修旧如旧,局部微更新改造的方式保留原街区的风貌,同时插入“陶”主题的空间线索作为参观体验路径,为艺术家、策展人和运营方提供空间基础,最终实现以陶瓷文化艺术带动相关业态发展以及激活历史街区的设想。


现状建筑的丰富性

陶艺家李见深在2023年初选定这个位于佛山南海区官窑镇的驿园西路北侧尚不太起眼的一组建筑作为未来官窑文化艺术中心的时候,这里的场地中的每个建筑和物件都像是被尘封多年静待开启。该组建筑总面积约865㎡,共由4幢单体组成,其建造年代和形式各异——1号楼珠江纵队队部旧址建于20世纪初,是一幢典型的西方样式与本土文化结合的民国建筑;2号楼建于解放后,是一幢外廊式砖混结构的三层建筑;3号楼是一幢近年加建的混凝土框架结构的单层小型建筑;4号楼则是建造年代不详的砖木结构的单层民宅。这4幢建筑共同围合出一个狭长的内院,其与3号楼屋顶的小露台共同构成了区域内的户外核心公共空间。建筑群门口的“驿园西路”自千年前已是繁华的驿道,建筑群纵跨百年的建成历史也成为区域的重要特征。这里就像是一个露天的建筑博物馆,完整不间断的保留了各个时期的建筑样式,叠加近几十年不同使用功能——包括派出所、民宅留下的生活印际,随便切一刀的断面都记录着厚重的百年建筑史。


顺势设计与场所精神再生

经过对每幢建筑详细的测绘以及结构检测,依据历史风貌价值评估和未来使用的可能性,设计团队针对现存各建筑制定了不同的修复与改造策略。其中历史建筑的外观要恢复到哪个历史时期非常重要。是查询历史资料恢复到其刚建成时的原始外观,还是保留其使用过程中产生的各种痕迹?在这个项目中,建筑师在大部分的区域选择了后者,仅对安全性出现问题的部位进行了修复和调整。

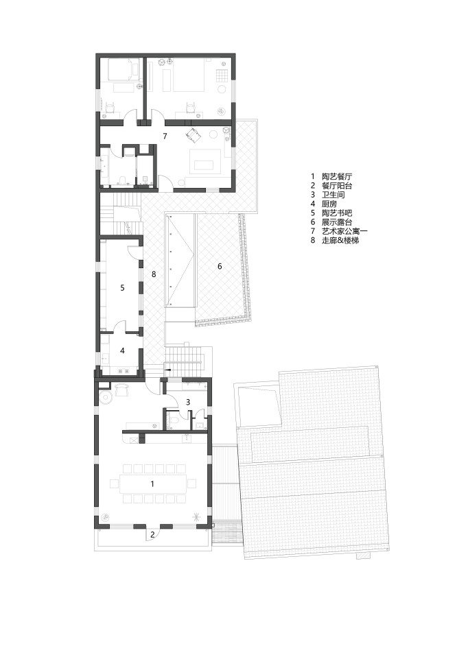
1号楼珠江纵队队部旧址以清洗及修复为主。南立面建筑外层破坏风貌的真石漆面层被水枪清洗干净,露出内部的原始水泥砂浆面层及各历史时期涂刷的隐约可见的标语。栏杆、窗框破损处均进行了详细的测绘和实物开模,使修复部分与保留部分保持一致。内部楼板与木梁进行白蚁防治及钢梁加固,替换已经朽烂的木构。

2号楼进行了外观修复及内部空间调整。原建筑主要是砖混结构,局部为框架结构。其内部布局开间较小,较难作为公共空间使用。因此设计师微调了内部空间布局,使其满足艺术家驻访起居住宿的功能需求。建筑外部保留原始的水刷石材料,对局部破损处进行修复。

3号楼拆除了原框架柱间的门窗,开放建筑内部空间,使其与外部院落相通。加固原钢筋混凝土结构梁板柱,使屋面能承载更多人群和活动。作为院落对景的楼梯通过设计师与施工方的努力被保留了下来,经过加固后继续成为整个区域的视觉焦点。

4号楼在保留原外墙的基础上拆除原内部空间错综复杂的砖墙结构,替换为8根钢木柱撑起屋面及夹层。原建筑为三户并排的民宅,其内部空间受结构砖墙限制较大,同时三户住宅中的两户间还存在600mm的高差。改造前的现场条件与陶艺工作室的功能定义存在较大冲突,因此改造过程中结构构件被最大程度的集约化了,以保证底部空间自由灵活,尺度适宜艺术创作。原场地的高差关系则被保留下来,成为工作室中功能灵活可变的区域。


以“陶”为线索——新置入的流线与视觉系统

沿街的两幢建筑分别是承担会客功能的1号楼珠江纵队队部旧址,以及承担工作室功能的4号楼改造民宅,进入内部公共院落需要打开另一个出入口。同时内部院落、院内露台以及屋顶露台共同形成的公共空间系统也需要在沿街面上有所提示。因此,建筑师在建筑群之间置入了一组陶砖加钢架共同构成的新的流线系统,同时也成为“陶”主题再次在官窑复兴的视觉系统。此系统从入口处的砖砌休息座椅区导向连廊区,穿过连廊正对的照壁则是一堵局部镂空的砖砌墙。砖砌墙的背后上方是3号楼屋顶经改造的上人露台,一组钢架加膜的视觉装置在此呈现,膜可随时替换为新的展陈内容。

钢架的顶端延伸至2号楼屋顶,成为新增屋顶露台的遮蔽屋架。这一组陶砖加钢架的系统希望尽可能的以轻介入的方式重新梳理建筑内院公共空间,较少的破坏原有场地在近百年来已经形成的场所精神,并且在驿园西路的街道上呈现出一点变化,使其成为观众进入内部空间的提示。


项目名称:佛山官窑文化艺术中心(官窑三宝)改造项目

项目类型:建筑/室内

项目地点:佛山市南海区狮山镇

策划:李见深国际陶艺工作室、西樵山书院、京都三宝株式会社

设计单位:灰空间建筑事务所

主持建筑师:刘漠烟、苏鹏

设计团队:琚安琪、应世蛟、颜翘楚、莫仙、李园园、井雨瑶(实习)

项目建筑师:颜翘楚

艺术指导:李见深

软装及展陈设计:知一设计研究室:雁森、毕舟希、李金龙、徐大伟

结构顾问:马海青、郭芳(1、2、3号楼);栾栌构造设计事务所(4号楼)

历史建筑保护顾问:束林

摄影:本质映像-柯剑波、颜翘楚

建设状态:建成

设计时间:2023年12月-2024年12月

建设时间:2024年9月-2025年4月

建筑面积:865㎡

材料:水刷石、青砖、胶合木、膜材、阳光板等